94 accord did stock swap clicks when battery hook up
Again, just to be sure.....the end that only has one cable is the ground.
The end that has two cables to it is the Pos (+). From this end, one cable (smaller one) goes to underhood fuse box and the larger to the starter.
The end that has two cables to it is the Pos (+). From this end, one cable (smaller one) goes to underhood fuse box and the larger to the starter.
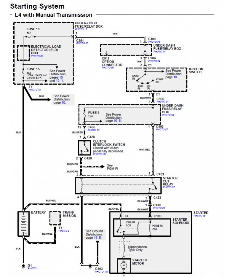
The starting system circuit diagram for a 4 cylinder manual transmission is attached as the first image.
One of the ground cables from the battery goes to the chassis, location G1 (see second attached image). Another ground cable goes to the transmission at location T4. A power wire goes to the starter and another to the fuse box.
Like I suggested previously, test the clutch safety switch (it is also called a clutch interlock switch or a clutch starter inhibitor switch). One of my previous post describe the testing procedures. Since, your first post stated the car can start without the clutch pedal pressed, also try disconnecting the connector to the switch and see if the car can still start. If it doesn't start without it connected, it may be a faulty clutch safety switch that is shorted in the closed position. --If the switch is shorted in the closed position, it would be similar to pressing the clutch pedal, even though the pedal is not pressed; thus, allowing you to start the car without it pressed.
If the car starts even without the clutch safety switch connected, then it may possibly be a short somewhere further down the circuit going to the starter cut relay (BLK/GRN wire (under dash area) or starter (BLK/WHT wire). The BLK/WHT wire going to the starter should be visible as part of the connector C130 in the engine compartment (see attached image).
One of the ground cables from the battery goes to the chassis, location G1 (see second attached image). Another ground cable goes to the transmission at location T4. A power wire goes to the starter and another to the fuse box.
Like I suggested previously, test the clutch safety switch (it is also called a clutch interlock switch or a clutch starter inhibitor switch). One of my previous post describe the testing procedures. Since, your first post stated the car can start without the clutch pedal pressed, also try disconnecting the connector to the switch and see if the car can still start. If it doesn't start without it connected, it may be a faulty clutch safety switch that is shorted in the closed position. --If the switch is shorted in the closed position, it would be similar to pressing the clutch pedal, even though the pedal is not pressed; thus, allowing you to start the car without it pressed.
If the car starts even without the clutch safety switch connected, then it may possibly be a short somewhere further down the circuit going to the starter cut relay (BLK/GRN wire (under dash area) or starter (BLK/WHT wire). The BLK/WHT wire going to the starter should be visible as part of the connector C130 in the engine compartment (see attached image).
Last edited by redbull-1; Dec 26, 2012 at 10:15 PM. Reason: Added to clarify a bit.
The attached picture is a WRONG connection of the battery.
Please take a pic of your set up and post it....."please".


