electrical problem with intrument cluster
Sounds like a relay issue of some sorts..... So you can switch your cooling fan realy in place of the window relay and test again. If that doesn't work then we'll have to do some more tests.
Last edited by poorman212; May 21, 2012 at 07:01 PM.
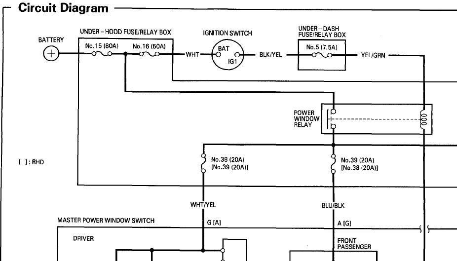
I have the EXACT same problem as you as far as power windows not working unless I jump the relay like you have, also my dash lights will intermittently work when they feel like it, no check engine light ever and no power locks. I have been reading a bit and looks like G401 and G403 are common between most of my issues but I dont know where to find them. I have replaced the integrated control unit with a new one, as well as a new power window switch (old window switches burnt out from having the relay jumped I believe.) Anyways if anyone knows how to get to those grounds I might start checking those and seeing what happens, also read somewhere that someone had similar issues and replaced their VSS and it solved all sorts or weird electrial issues, if anyone has any feedback on that I would be interested in hearing it.
i dont know about the VSS but the fuse under the dash the one 10 amp fuse that had no voltage with the key on i believe is the power to the relay with the key on. i know that i had 12 volts at two spots and then a ground yes but i also have 12 volts at the plug in the door so. somwthing is not coming on with the ignition to give power to the windows. and i hope the jumper doesnt burn out the master switch. i had an extra from the junk yard and yesterday the back passenger window wouldnt come up. would go down more but never came up. so ???? i haven had a chance to look anymore at the diagrams etc and i tried cleaning all the ground boxes i could find. including the one on the thermostat housing. imma make a video here soon on what i found and all. was looking at your diagram and fuse number 5 the 7.5 amp comes off the ignition switch and should be what starts the relay so you can use your power windows. when i get home imma take a look at that and see what condition it is in.
Last edited by Cspeade; Jun 9, 2012 at 07:00 AM.
Thread
Thread Starter
Forum
Replies
Last Post
onlinelinkz
General Tech Help
7
Apr 21, 2010 11:21 PM
migy89
Private 'Wanted' Classifieds
2
Mar 29, 2008 04:10 PM




