2001 Accord LX - AC clutch not working
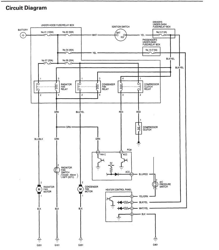
Ok....Finally got back to the car....The A/C system is holding pressure just fine so I dont think that there is a leak....The fan and clutch work when I bypass the pressure switch so my guess is that the pressure switch is no good and should be replaced...any thoughts.
This is getting long, which means I didn't re-read everthing. If you do a continuity test on the pressure switch....what does it show?
There should be about 5v to one side of the switch.....then if ac pressures are to spec...the 5v "flows" to the other side.
There should be about 5v to one side of the switch.....then if ac pressures are to spec...the 5v "flows" to the other side.
Agree as long as you're sure of system pressure. I remember something about a faulty pressure gauge.
I believe you will have to discharge the system to replace the pressure switch as there's no schrader vavle beneath the switch.
good luck
I believe you will have to discharge the system to replace the pressure switch as there's no schrader vavle beneath the switch.
good luck
Thread
Thread Starter
Forum
Replies
Last Post




